連載 · 30丨天藍水清之源—葉水泉和源牌集團之創業傳奇
2017-01-06
第三篇章 驕人業績,誰人與我爭鋒?
憑著隱忍、執著、自信,源牌人的智慧和勤勞的秉性得以充分發揮,樹創民族品牌的決心比天還要大。攬來并建成一大批低碳智慧建筑,更讓節能環保理念進一步深入人心。成功實施各大項目的過程,又是獲取各項重大研發成果之時,源牌的核心產品都在實際應用時經受嚴酷考驗、得以成功升級。每幢完美的低碳建筑都是一座豐碑,生物質鍋爐將為發展循環經濟立下新的功勛。
第十二章 廣州珠江城,標志性的一大步
第二節 最綠的摩天大樓—廣州珠江城大廈

珠江城大廈夜景圖
廣東珠江城大廈是一處大型低能耗超高層甲級寫字樓項目,由中國煙草廣東省公司投資建設,位于廣州市珠江新城,為廣州市標志性建筑之一。該項目占地面積10636m2,總建筑面積約為21萬m2,主樓為高309米、共77層,但在擁有東塔、西塔以及有“小蠻腰”之稱的廣州塔等著名建筑的珠江新城,與其它高大建筑相比,在高度上珠江城并不具備太大優勢,似乎缺乏亮點。

珠江城大廈風力發電設計
既然比不過高度,那就比綠色,比節能。把“打造一座最綠的摩天大樓”作為建造該大樓的定位,表明珠江城的建設者有著獨到的眼光和全新的思維。按照這一定位,大樓建設方請來了美國的SOM公司做概念設計,由廣州建筑設計研究院進行施工圖設計配合,設計和施工過程中采用了很多的新技術,包括在建筑體中部開四個孔,安裝四臺巨型風力發電機,而在屋面是光伏發電裝置,呼吸式幕墻、智能百葉、新型照明技術、智能樓控、冷輻射空調……等全用上了。

珠江城大廈截面圖
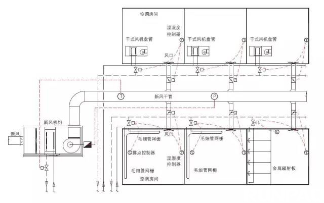
“國電能源院在機電一體化產品方面畢竟還是有優勢的。在獲得了中央空調自動控制總集成這項業務后,我們組織精兵強將全力研發屬于我們自己的新一代機電一體化產品,替代國外的DDC樓宇自動控制產品。按照我們的能源環境協同控制理念,需要擁有自己設計的軟件,對能源計量進行精確化管理,強化精確調試、整體化服務。事實上,把為建筑創造健康舒適環境的同時追求能源消耗最低這一目標,就必須突破傳統路子,更好地實現我們創新的設想。”葉水泉回憶,在成功研發了PLC樓宇自控技術之后,溫濕度獨立控制之柔性中央空調,直至變風量空調項目的研發也獲得了重大突破。
關于溫濕度獨立控制之柔性中央空調,在此值得多羅嗦幾句。

源牌柔型空調溫度調節末端分類表
國電能源院拿下珠江城智能化控制系統總集成,包括建筑設備監控系統、能源計費系統、智能照明系統、物業設施管理系統、機房工程和智能化集成系統等這一項目,也與廣東人不憚于創新、敢于大膽嘗試有關。這一點讓葉水泉極為感沛,若沒有建設方提供如此優裕的敢做敢為的勇氣和條件,葉水泉以及源牌集團在這些領域的進步,或許還得晚些時日。而如今,源牌集團的能源與環境協同控制解決方案,諸如舒適環境控制技術、能源計量與收費管理技術、能效管理與節能控制技術、先進無線組網技術等,都已遠遠走在了同行前列。

源牌柔型空調濕度調節設備分類表
廣州位于低緯度地區,室外濕度比較高,采用溫濕度獨立控制這一原本多見于北歐干燥地區的空調技術,容易在吊頂上出現結露或稱凝露現象,有點兒風險。但正在這時,葉水泉等技術人員成功研發了“基于絕對含濕量控制的變風量冷輻射空調系統”,并通過國家空調設備質量檢測中心的檢測認可,達到國際先進水平,隨即在珠江城項目上應用。

源牌柔型空調控制原理
溫濕度獨立控制之柔性中央空調由于采用了溫濕度獨立的控制系統,可以滿足不同房間熱濕比不斷變化的要求,能克服常規空調系統中難以同時滿足溫、濕度參數的弱點,有效避免室內濕度過高(或過低)的現象。這類空調系統其基本組成為處理顯熱的系統與處理潛熱的系統,兩個系統獨立調節分別控制室內的溫度與濕度。
處理顯熱的系統包括高溫冷源、余熱消除末端裝置,采用水作為輸送媒介。由于室內相對濕度可以一直維持在60%以下,較高的室溫(26℃)即可達到熱舒適要求,這就解決了當相對濕度太高,只得把室溫降低(甚至到20℃),以維持舒適要求的難題,既降低了運行能耗,還減少了由于室內外溫差過大造成的熱沖擊對健康的危害。
詳見鏈接:【轉自HVAC】國際超甲級寫字樓——珠江城柔性中央空調系統設計案例

房間溫度、含濕量、相對濕度變化曲線

新風BOX 的閥位和風量變化
由上圖可以看出,當房間人員增多導致濕負荷升高后,房間含濕量有上升趨勢,此時新風BOX及時響應,增大閥位開度,新風量隨之增大,很好地穩定了室內的含濕量,使得室內含濕量一直保持在10.8 g/kg左右;當15:30房間內的人員陸續走出房間后,房間濕負荷變小,BOX閥位和新風量也相應減小了。
在此,再說一說溫濕度獨立控制之柔性中央空調與變風量空調之間的關系。簡單地說,溫濕度獨立控制空調系統的特點是用干燥新風通過變風量方式調節室內濕度,用高溫冷水通過獨立的末端(輻射方式或對流方式)調節室內溫度。一句話,正是溫濕度獨立控制空調系統在廣州珠江城的成功嘗試,直接觸動并促進了源牌集團基于變風量空調控制絕對含濕量的冷輻射空調的整體研發和應用。

珠江城大廈智能百葉遮陽
具體點說,珠江城項目的主要技術創新內容,包括4×6KW風力發電、180KW太陽能發電、溫濕度獨立控制之柔性中央空調、中空雙層呼吸式Low-E幕墻、智能百葉遮陽、人性化照明系統和日光漫反射系統、RUNPAQ建筑能源環境協同控制系統等。
正是因為通過這幢大樓的設計建造,研發并應用了很多新技術新工藝,后來它被美國《國家地理雜志》評為“全球最綠的摩天大樓”,《發現》這個知名電視欄目把它的設計建造稱之為“全球十大探尋工程”,大樓的建設成就還在紐約時代廣場的巨型屏幕上宣傳,這其中,當然有著國電能源研究院和以葉水泉為代表的科研人員的貢獻。

大樓13 層控制界面截圖
“連這幢大樓建設方的總工程師、技術負責人也嘆服我們,尤其是非常認可我們研發的PLC樓宇自動控制系統。因為這項工程,他還與我成了忘年交!可想而知,這個項目對增強國電能源研究院以及日后的源牌集團的研發實力,對提振我們全體科研人員的信心,起到了多大的作用,把它說成是一座標志性的里程碑絕不為過!”講完了這個故事,葉水泉意猶未盡,甚至像是剛打開了話匣子。
的確,這個項目的非凡成功,開辟了國電能源院和未來源牌集團發展的康莊大道,意義特別深遠。“等到這幢大樓落成,你一定要去看一看。進入大樓,你能感覺到陽光明媚、空氣清新,因為大樓的室內PM2.5常年保持在10以下,溫度濕度非常宜人。它是目前為止全球低緯度地區采用溫濕度獨立控制之柔性中央空調的最大規模建筑!如今,有不少專家、建設方前往那兒參觀考察,實地看過以后,就更明白我們源牌究竟是家什么樣的企業了……”

測試房間溫、濕度數據表
廣州珠江城大廈項目已于2013年建成投入使用。也就是說,在該項目實施過程中,牌子豎起來了,一個個大項目接踵而至,而且都完成得十分出色。眼下,源牌集團剛剛中標的,是一個遠比廣州珠江城大廈更加巨大的項目——位于北京CBD中心區塊的“中國尊大廈”項目,108層超高層大樓,為北京新的地標。

中國尊大廈夜景圖
葉水泉認定,源牌集團有能力把它的智能化樓宇設備控制系統、冰蓄冷變風量低溫送風空調和建筑能效管理系統建設成為全球超高層建筑的新標桿。在如今拿下這些大項目,一方面當然為了進一步壯大實力,為了經濟效益,另一方面也是為了與國外知名公司再來一次比拼。早已戰勝過西門子、Johnson、Honywell等國外同行好幾回了,這一回比拼將同樣不遜于他們。在一幢幢雄踞世界的高樓上,抬眼都是貼有源牌RUNPAQ標識的產品,這該有多痛快,多自豪?!
·請持續關注每周五連載·
下一節將帶來:
變風量空調和樓宇自控系統,源牌占據了制高點
特約作者:孫侃

